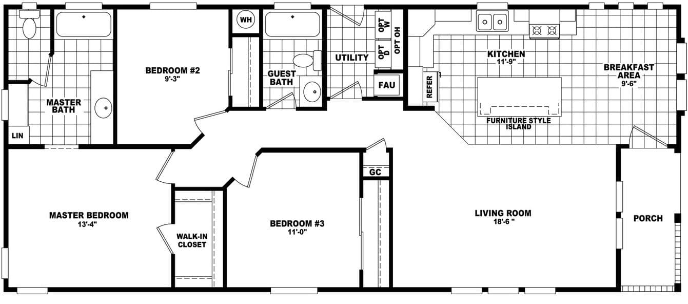
Homes | Westin Porch 24563A