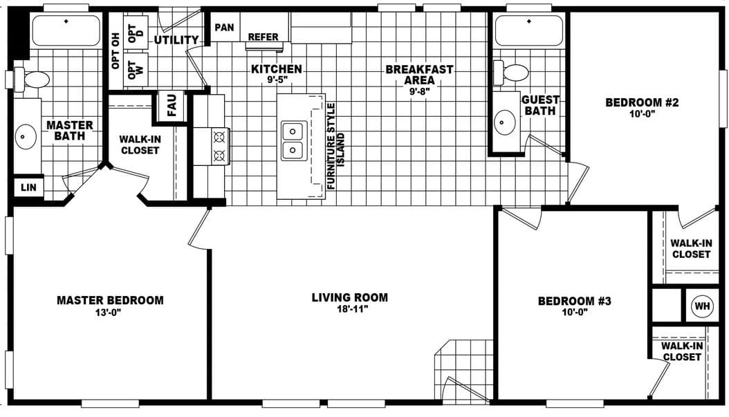
Homes | Mountain Ridge 28483A