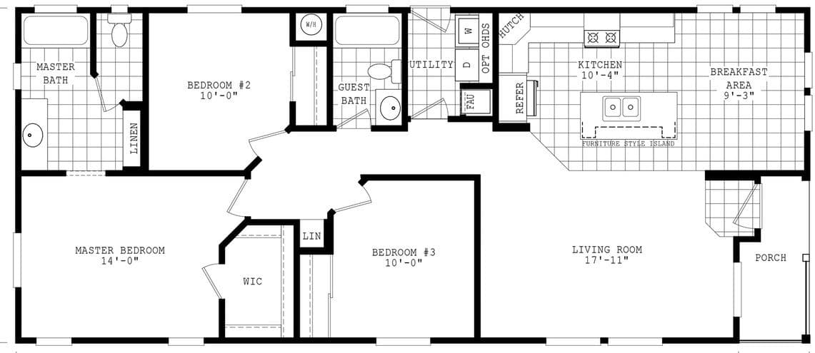
Homes | Durango Porch Homes 24563A