Solid I-Beam Frame Construction with Corrosion Resistant Undercoating
Sealed Floor Duct System and Water Lines Installed Inside R-22 Rated Fiberglass Blanket Insulation under Subfloor
5/8 Inch Floor Decking
30# Roof Load
2” x 6” Subfloor Construction with Joists Spaced 16” On Center
Shut-Off Valves on all Water Fixtures
2” x 4” Exterior Wall Construction with Studs Spaced 16” On Center and R-11 Rated Fiberglass Insulation, 2X Top and Bottom Plates
96” Exterior Sidewall Height
100 Amp Electric Service with Copper Wiring and Interior Panel Box
Gas Auto Ignition Furnace with Toe Kick Registers in Kitchen and Bathrooms (N/A some locations)
40 Gallon Electric Water Heater
Class A Rated Shingles
R-30 Rated Blown Cellulous Roof Insulation
Vertical Cement or LP Siding
Large White Vinyl Framed Dual-Paned Windows with Locks per Plan
Bathroom Windows per Plan
Residential 80” Insulated Front Door with Deadbolt, Residential 9-Lite Rear Door with Deadbolt
Exterior Lights at Front and Rear Doors
6” Roof Eaves on Side Walls, 12” Front and Rear Overhangs
Exterior GFCI Electric Outlet
Solid I-Beam Frame Construction with Corrosion Resistant Undercoating
Sealed Floor Duct System and Water Lines Installed Inside R-22 Rated Fiberglass Blanket Insulation under Subfloor
5/8 Inch Floor Decking
30# Roof Load
2” x 6” Subfloor Construction with Joists Spaced 16” On Center
Shut-Off Valves on all Water Fixtures
2” x 4” Exterior Wall Construction with Studs Spaced 16” On Center and R-11 Rated Fiberglass Insulation, 2X Top and Bottom Plates
96” Exterior Sidewall Height
100 Amp Electric Service with Copper Wiring and Interior Panel Box
Gas Auto Ignition Furnace with Toe Kick Registers in Kitchen and Bathrooms (N/A some locations)
40 Gallon Electric Water Heater
Class A Rated Shingles
R-30 Rated Blown Cellulous Roof Insulation
Vertical Cement or LP Siding
Large White Vinyl Framed Dual-Paned Windows with Locks per Plan
Bathroom Windows per Plan
Residential 80” Insulated Front Door with Deadbolt, Residential 9-Lite Rear Door with Deadbolt
Exterior Lights at Front and Rear Doors
6” Roof Eaves on Side Walls, 12” Front and Rear Overhangs
Exterior GFCI Electric Outlet
Interior
Congolium Linoleum Floor Covering in Kitchen, Bathrooms, Utility Room, Including Entryway (Per Plan)
Grade 1 Carpet and ½” Pad
Dining Room Chandelier, Bedroom Ceiling Lights, and Bathroom Ceiling Lights
8’ Flat Ceilings Throughout Entire Home with Knockdown Textured Finish
2 x 4 Interior Walls Throughout
80” Tall Raised Panel Interior Passage Doors & Lever Handles
5/8” Thick Interior Door Jambs with Profiled Door Casing
5011 Baseboards in Wet Areas
2” White Faux Wood Blinds Throughout
Wood Closet Shelving and Poles in All Wardrobes and Closets
2 Recessed Can Lights in Kitchen
White Interior Paint
Ceiling Fan Ready in Living Room and Primary Bedroom
Congolium Linoleum Floor Covering in Kitchen, Bathrooms, Utility Room, Including Entryway (Per Plan)
Grade 1 Carpet and ½” Pad
Dining Room Chandelier, Bedroom Ceiling Lights, and Bathroom Ceiling Lights
8’ Flat Ceilings Throughout Entire Home with Knockdown Textured Finish
2 x 4 Interior Walls Throughout
80” Tall Raised Panel Interior Passage Doors & Lever Handles
5/8” Thick Interior Door Jambs with Profiled Door Casing
5011 Baseboards in Wet Areas
2” White Faux Wood Blinds Throughout
Wood Closet Shelving and Poles in All Wardrobes and Closets
2 Recessed Can Lights in Kitchen
White Interior Paint
Ceiling Fan Ready in Living Room and Primary Bedroom
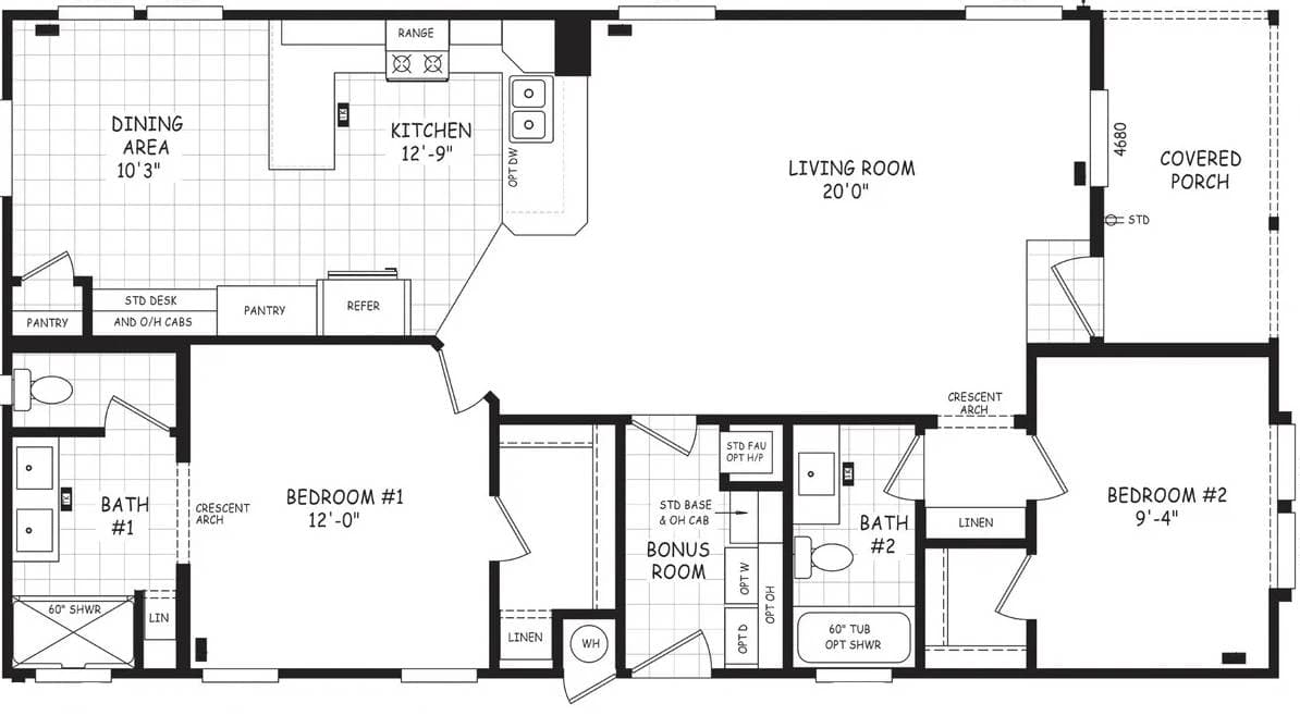
Images of homes are solely for illustrative purposes and should not be relied upon. Images may not accurately represent the actual condition of a home as constructed, and may contain options which are not standard on all homes.