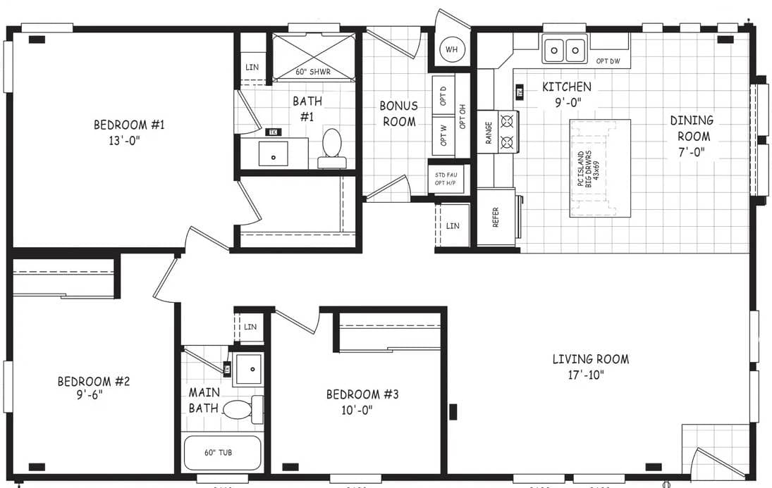
Homes | Edge 28443C