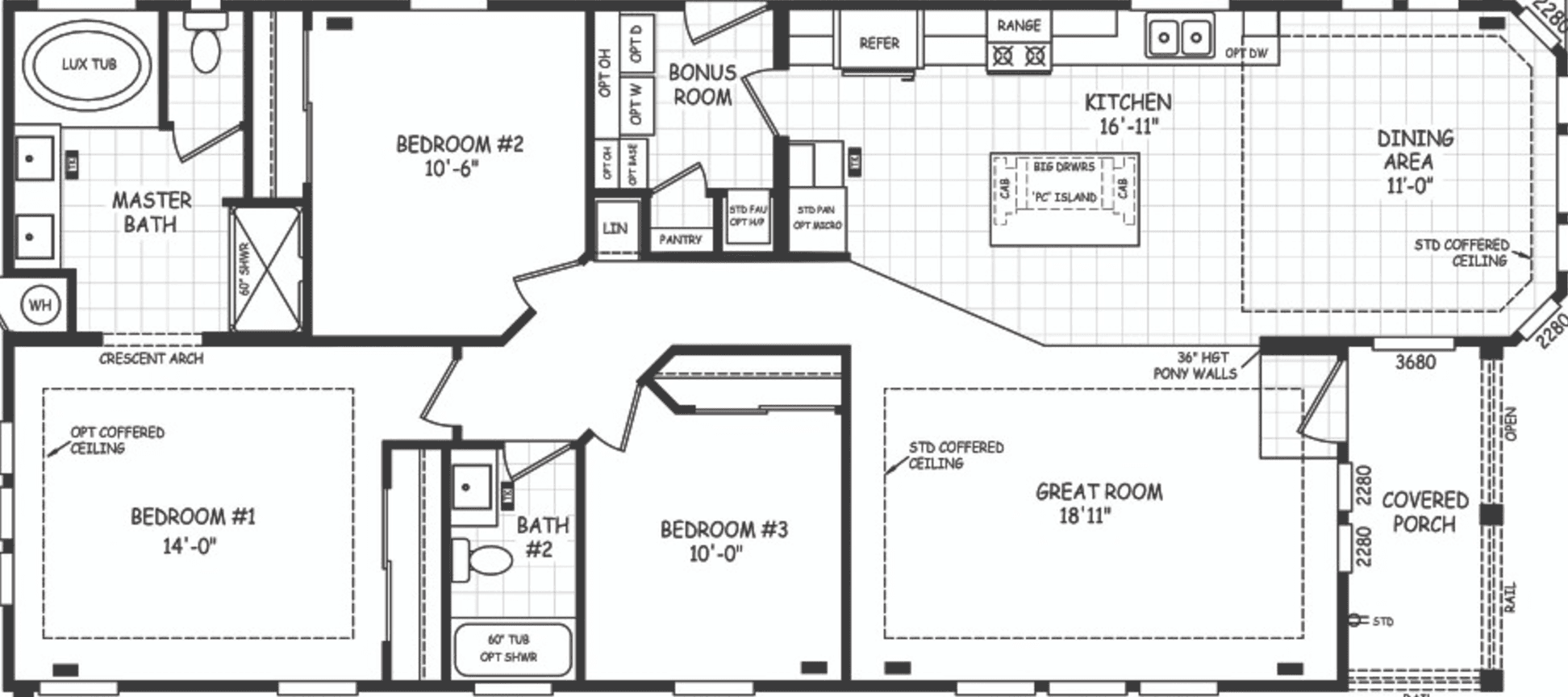
Homes | Pacifica 28613E