Solid I-Beam Frame Construction with Corrosion Resistant Undercoating
Sealed Floor Duct System and Water Lines, Installed Inside R-22 Rated Fiberglass Blanket Insulation under Subfloor
5/8 Inch Floor Decking
30# Roof Load
2” x 6” Subfloor Construction with Joists Spaced 16” On Center
Shut-Off Valves on all Water Fixtures
2” x 4” Exterior Wall Construction with Studs Spaced 16” On Center and R-11 Rated Fiberglass Insulation, 2X Top and Bottom Plates
108” Exterior Sidewall Height
100 Amp Electric Service with Copper Wiring and Interior Panel Box
Gas Auto Ignition Furnace with Toe Kick Registers in Kitchen and Bathrooms (N/A some locations)
40 Gallon Electric Water Heater
Class A Rated Shingles
R-30 Rated Blown Cellulous Roof Insulation
Vertical Cement or LP Siding with Horizontal Lap on Front- Per Plan
Large White Vinyl Framed Dual-Paned Windows with Locks-per plan
Bathroom Windows per plan
Residential 8’ Craftsman Front Door with Deadbolt, Residential 9-Lite Rear Door with Deadbolt.
Exterior Lights at Front and Rear Doors
6” Roof Eaves on Sides walls, 12” Front and Rear Overhangs
Exterior GFCI Electric Outlet
Solid I-Beam Frame Construction with Corrosion Resistant Undercoating
Sealed Floor Duct System and Water Lines, Installed Inside R-22 Rated Fiberglass Blanket Insulation under Subfloor
5/8 Inch Floor Decking
30# Roof Load
2” x 6” Subfloor Construction with Joists Spaced 16” On Center
Shut-Off Valves on all Water Fixtures
2” x 4” Exterior Wall Construction with Studs Spaced 16” On Center and R-11 Rated Fiberglass Insulation, 2X Top and Bottom Plates
108” Exterior Sidewall Height
100 Amp Electric Service with Copper Wiring and Interior Panel Box
Gas Auto Ignition Furnace with Toe Kick Registers in Kitchen and Bathrooms (N/A some locations)
40 Gallon Electric Water Heater
Class A Rated Shingles
R-30 Rated Blown Cellulous Roof Insulation
Vertical Cement or LP Siding with Horizontal Lap on Front- Per Plan
Large White Vinyl Framed Dual-Paned Windows with Locks-per plan
Bathroom Windows per plan
Residential 8’ Craftsman Front Door with Deadbolt, Residential 9-Lite Rear Door with Deadbolt.
Exterior Lights at Front and Rear Doors
6” Roof Eaves on Sides walls, 12” Front and Rear Overhangs
Exterior GFCI Electric Outlet
Kitchen
39” City Scape Kitchen Overhead Cabinets with Finished Interiors, Adjustable Shelves and Crown Molding
Hardwood Cabinet Doors with Choice of Hardware
Drawer over Door Cabinet Construction in Kitchen with Steel Drawer Guides
High-Pressure Laminate Countertops
Crescent Countertop Edging Throughout
1 Row of Ceramic Tile Backsplashes throughout
Elegant Deep Stainless Steel Kitchen Sink with Single Lever Pullout Faucet
GE® 17 Cubic Foot Double-Door Frost-Free Refrigerator with Icemaker
GE® 30” Deluxe Self Cleaning Free-Standing Gas Range
Utility Overhead Shelf at Washer and Dryer Area in Bonus Room
39” City Scape Kitchen Overhead Cabinets with Finished Interiors, Adjustable Shelves and Crown Molding
Hardwood Cabinet Doors with Choice of Hardware
Drawer over Door Cabinet Construction in Kitchen with Steel Drawer Guides
High-Pressure Laminate Countertops
Crescent Countertop Edging Throughout
1 Row of Ceramic Tile Backsplashes throughout
Elegant Deep Stainless Steel Kitchen Sink with Single Lever Pullout Faucet
GE® 17 Cubic Foot Double-Door Frost-Free Refrigerator with Icemaker
GE® 30” Deluxe Self Cleaning Free-Standing Gas Range
Utility Overhead Shelf at Washer and Dryer Area in Bonus Room
Bathroom
36” High Bathroom Lavies
Tape & Texture Oval Drop-In Tub and Separate Fiberglass Shower w/ Glass Door (per Plan)
One-Piece Fiberglass Tub/Shower in Main Bathroom
Elongated Water Saver Commodes
Medicine Cabinets, Towel Bars and Tissue Holders in Bathrooms
36” High Bathroom Lavies
Tape & Texture Oval Drop-In Tub and Separate Fiberglass Shower w/ Glass Door (per Plan)
One-Piece Fiberglass Tub/Shower in Main Bathroom
Elongated Water Saver Commodes
Medicine Cabinets, Towel Bars and Tissue Holders in Bathrooms
Interior
Congolium Linoleum Floor Covering in Kitchen, Bathrooms, Utility Room, Including Entryway (Per Plan)
Grade 2 FHA Approved Carpet and FHA Approved ½” Pad
Dining Room Chandelier, Bedroom Ceiling Lights and Bathroom Ceiling Lights
9’ Flat Ceilings throughout Entire Home with Knockdown Textured Finish
2 x 4 Interior Walls Throughout
8’ Tall Raised Panel Interior Passage Doors & Lever Handles
30” Interior Doors – Per Plan
5/8” Thick Interior Door Jambs with Profiled Door Casing
5111 Baseboards Throughout
2” White Faux Wood Blinds Throughout
Wood Closet Shelving and Poles all Wardrobes and Closets
5 Recessed Can Lights in Kitchen
White Interior Paint
Ceiling Fan Ready in Living Room and Primary Bedroom
Congolium Linoleum Floor Covering in Kitchen, Bathrooms, Utility Room, Including Entryway (Per Plan)
Grade 2 FHA Approved Carpet and FHA Approved ½” Pad
Dining Room Chandelier, Bedroom Ceiling Lights and Bathroom Ceiling Lights
9’ Flat Ceilings throughout Entire Home with Knockdown Textured Finish
2 x 4 Interior Walls Throughout
8’ Tall Raised Panel Interior Passage Doors & Lever Handles
30” Interior Doors – Per Plan
5/8” Thick Interior Door Jambs with Profiled Door Casing
5111 Baseboards Throughout
2” White Faux Wood Blinds Throughout
Wood Closet Shelving and Poles all Wardrobes and Closets
5 Recessed Can Lights in Kitchen
White Interior Paint
Ceiling Fan Ready in Living Room and Primary Bedroom
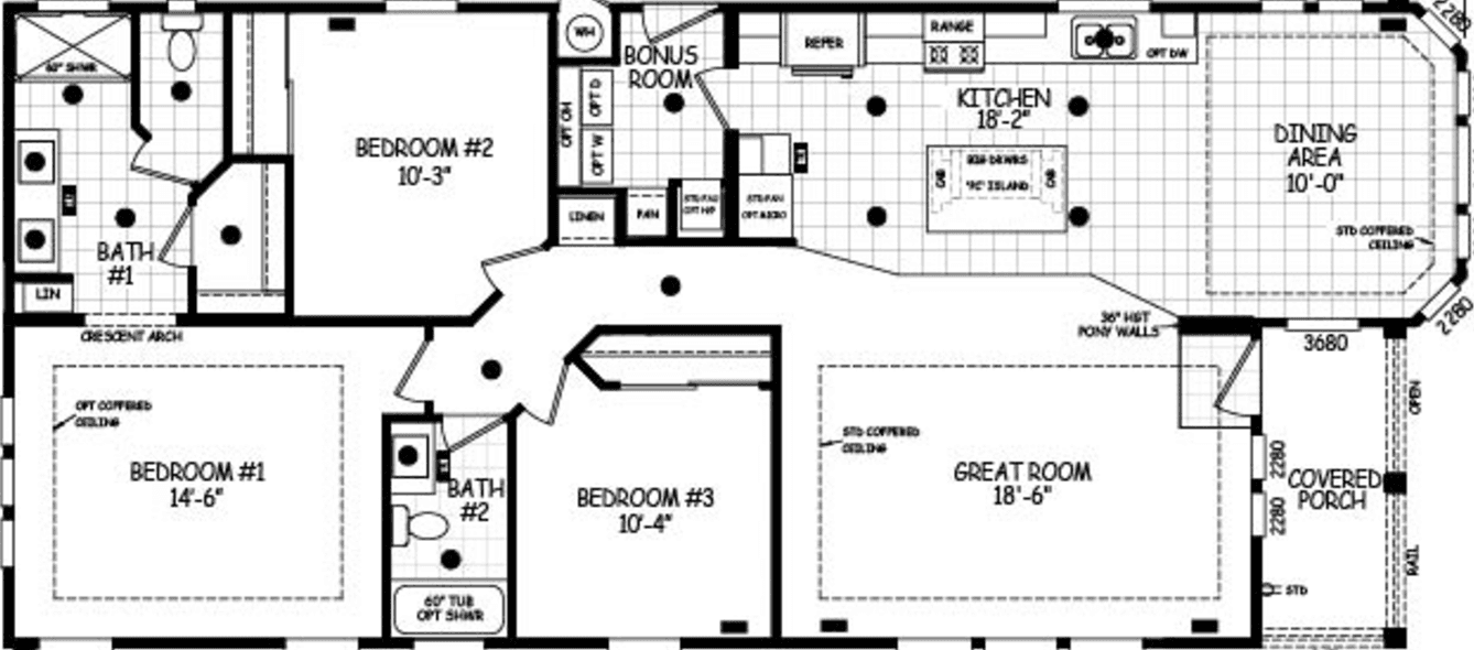
Images of homes are solely for illustrative purposes and should not be relied upon. Images may not accurately represent the actual condition of a home as constructed, and may contain options which are not standard on all homes.