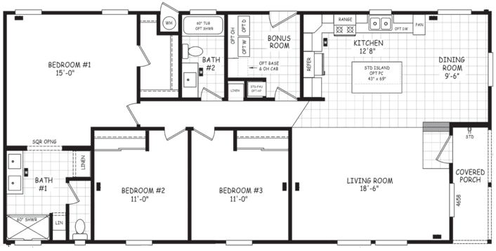
Homes | Edge 28563B