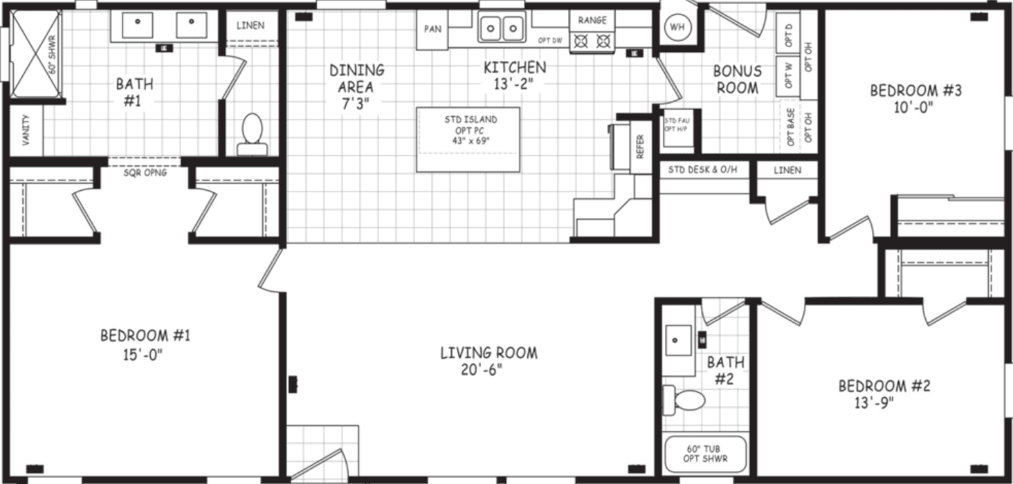
Homes | Edge 28563A