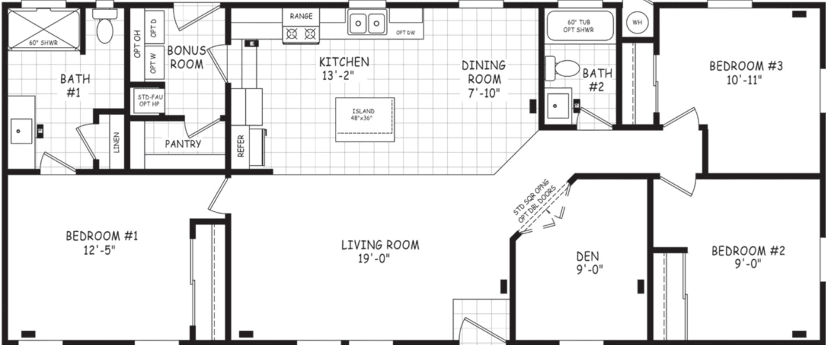
Homes | Edge 24563A