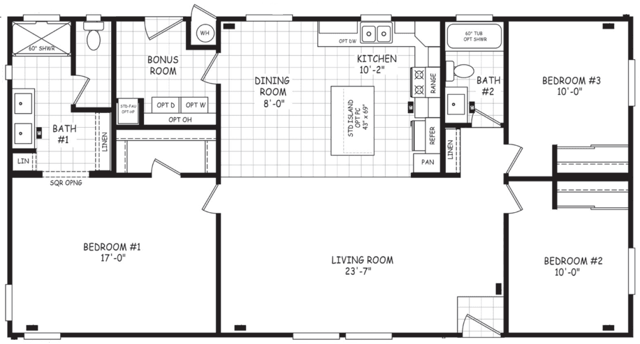
Homes | Edge 28523A