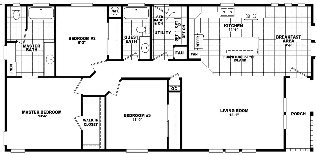
Homes | Westin Porch 28563A