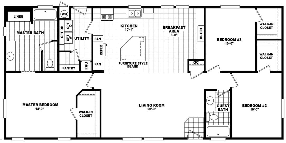
Homes | Mountain Ridge 28563B