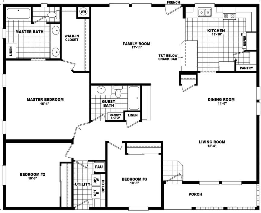
Homes | Mountain Ridge 40503A