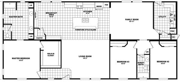
Homes | Mountain Ridge 32703A