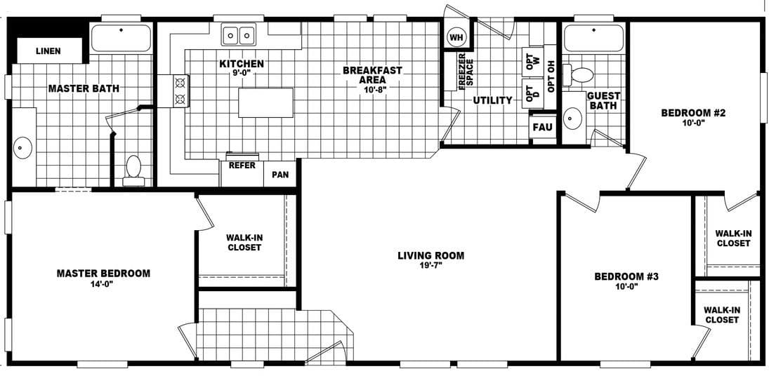
Homes | Mountain Ridge 28583B