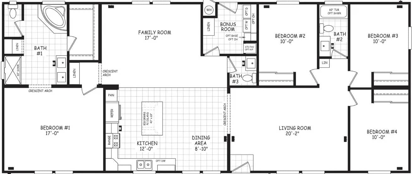
Homes | Edge 30704A