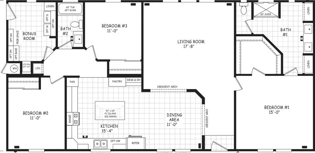
Homes | Edge 30603A