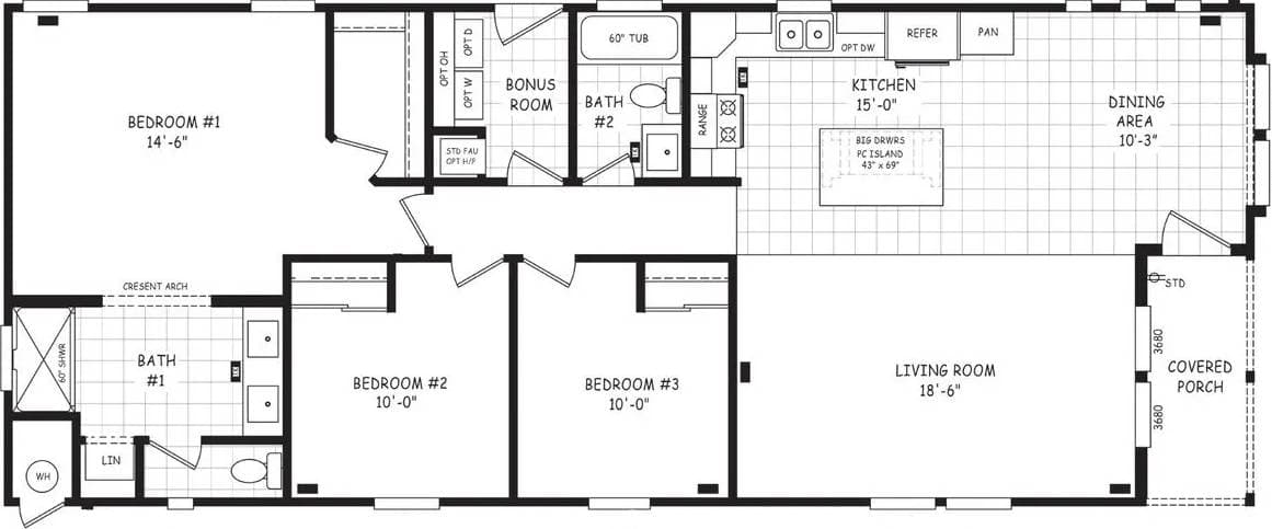
Homes | Edge 24583A