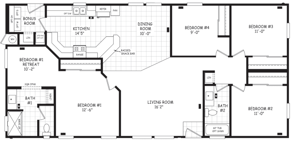
Homes | Edge 28564A