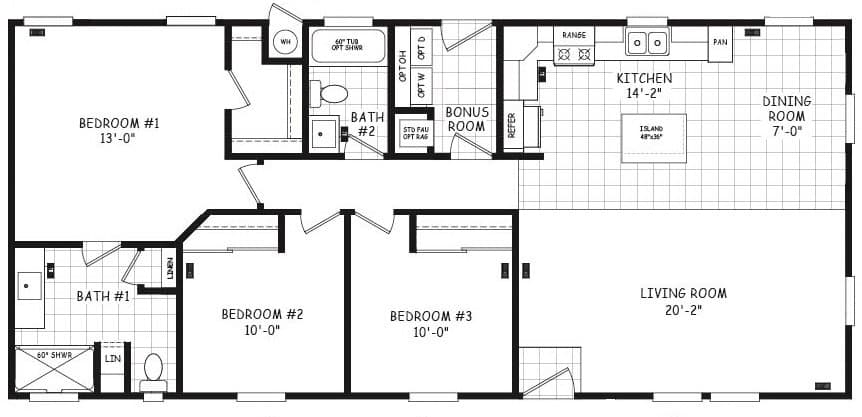
Homes | Edge 24523B