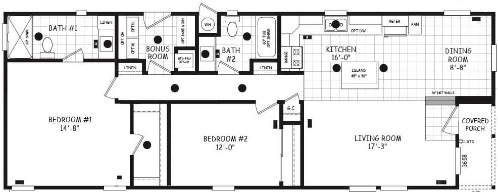
Homes | Edge 20562A