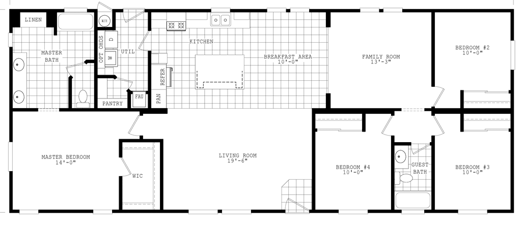
Homes | Sierra Value 32705A