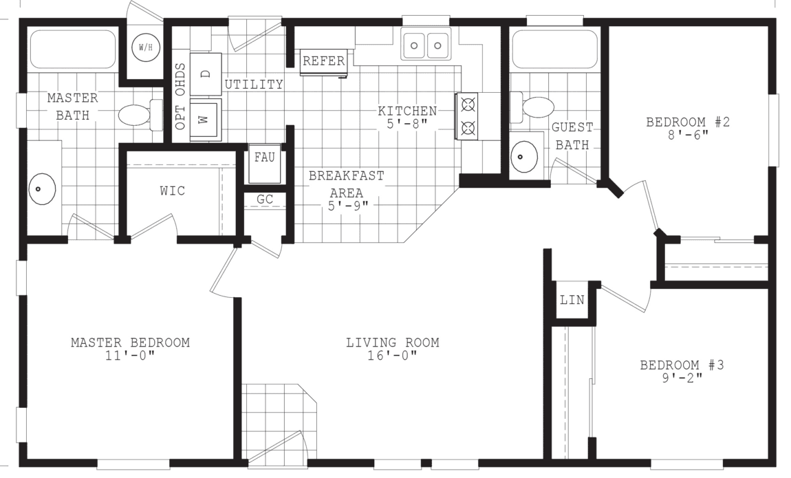
Homes | Sierra Value 24403B