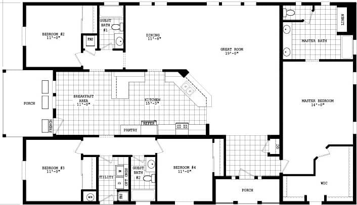
Homes | Mountain Ridge 40704A