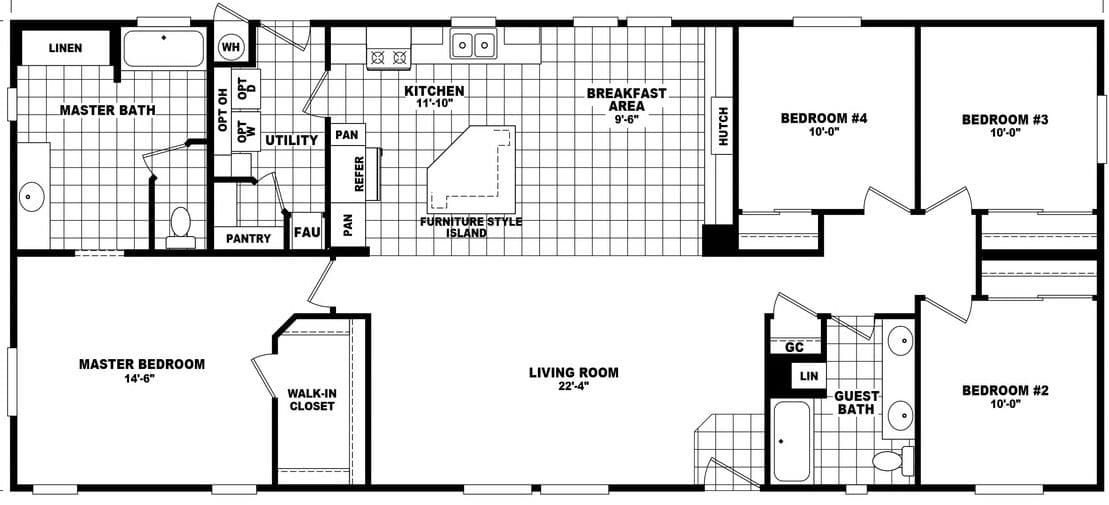
Homes | Mountain Ridge 28624A