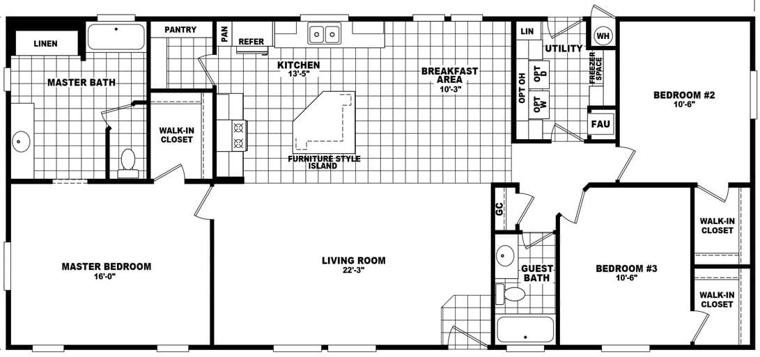
Homes | Mountain Ridge 28603A