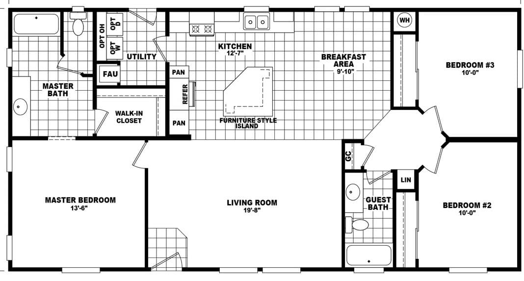
Homes | Mountain Ridge 28523A