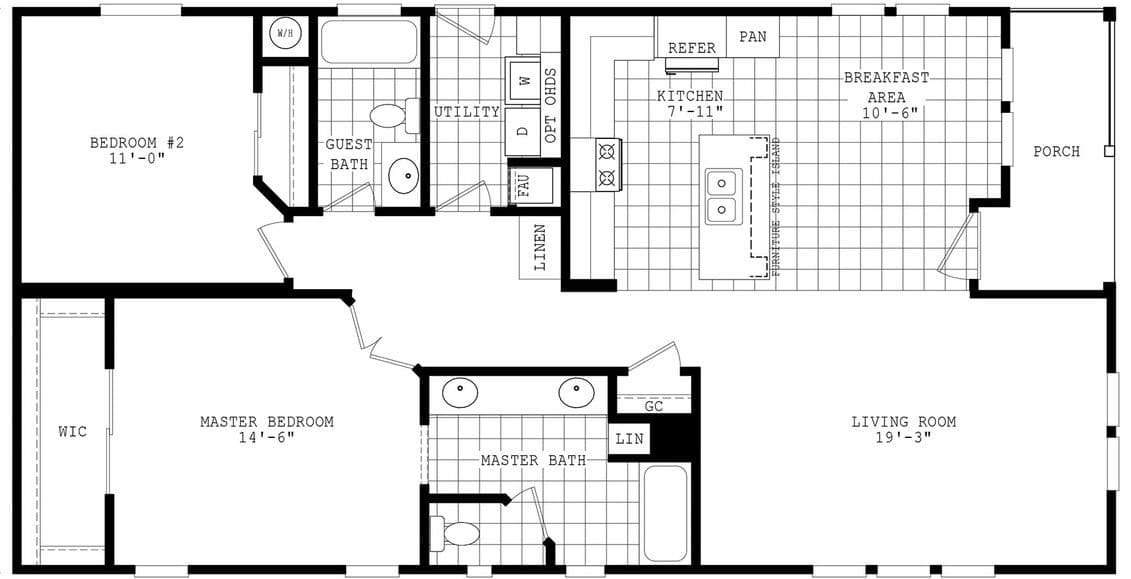
Homes | Durango Porch Homes 28522A