Homes | Catalina 2859C
Property map Enter your address or APN to check if this home fits on your property
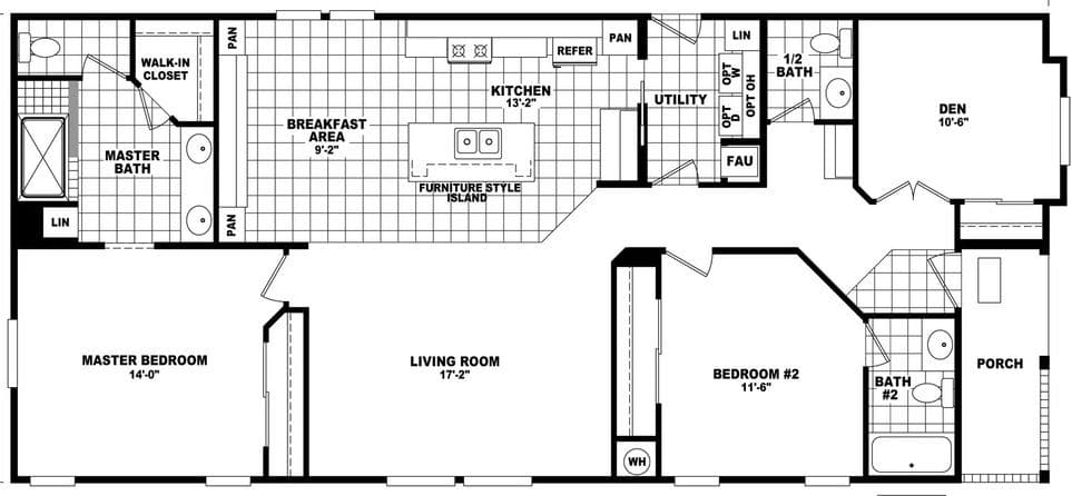
2 bedrooms
2 full bathrooms
1,581 sq. ft.
26' 8" x 59'
Catalina standard features
Interior
Full Tape and Texture Drywall Throughout Satin Interior Paint 9' Flat Ceilings Throughout 5/8" OSB Floor Decking Entry Linoleum 6 Panel Interior Passage Doors Residential Door Jambs and Trim Hollow Core Bi-Pass Closet Doors Hidden Cabinet Hinges 42" Tall Overhead Cabinets Bank of Drawers in Kitchen Base Cabinets Cabinet Door and Drawer Hardware 3/4" Cabinet Stiles Refer Overhead Cabinet Adjustable Shelves in Kitchen Overhead Cabinets Wood Cabinet Doors Coved Cabinet Molding on Overhead Cabinets Redrock Homes
Affordable homes at your fingertips
Get started with Redrock Homes
Find, design, and order your next home in a few clicks.
Sign up
2 bedrooms
2 full bathrooms
1,581 sq. ft.
26' 8" x 59'
Utility Overhead Shelf Above the Washer and Dryer
Upgrade Elongated Lavatory Bowls
Fiberglass Tub/Shower in Guest Bathroom
Ceramic Tile Shower Stall in Master Bathroom
Single Lever Faucets in Kitchen and Baths
Towel Bars and Tissue Holders in Baths
Exhaust Fans in Baths
Beveled Edge Medicine Cabinet in Baths
Beveled Edge Mirrors in Bath
7" Stainless Steel Kitchen Sink
Standard Gas Range
18' Double Door Refrigerator
Standard Gas Furnace
40 Gallon Electric Water Heater
Plumb/Wire and Vent for Washer and Electric Dryer
Interior 100 Amp Service
Dining Room Chandelier (N/A All Models)
Breakfast Room Chandelier
Lights in Baths Above Lavatories
Ceiling Fan Ready in Living Room and Master Bedroom
80" Tall Vinyl Dual Pane Windows Without Grids
White wood window cornices with 2" blinds
Upgrade Floor Linoleum
FHA Carpet and Pad
Full Tape and Texture Drywall Throughout Satin Interior Paint 9' Flat Ceilings Throughout 5/8" OSB Floor Decking Entry Linoleum 6 Panel Interior Passage Doors Residential Door Jambs and Trim Hollow Core Bi-Pass Closet Doors Hidden Cabinet Hinges 42" Tall Overhead Cabinets Bank of Drawers in Kitchen Base Cabinets Cabinet Door and Drawer Hardware 3/4" Cabinet Stiles Refer Overhead Cabinet Adjustable Shelves in Kitchen Overhead Cabinets Wood Cabinet Doors Coved Cabinet Molding on Overhead Cabinets Utility Overhead Shelf Above the Washer and Dryer Upgrade Elongated Lavatory Bowls Fiberglass Tub/Shower in Guest Bathroom Ceramic Tile Shower Stall in Master Bathroom
Single Lever Faucets in Kitchen and Baths Towel Bars and Tissue Holders in Baths Exhaust Fans in Baths Beveled Edge Medicine Cabinet in Baths Beveled Edge Mirrors in Bath 7" Stainless Steel Kitchen Sink Standard Gas Range 18' Double Door Refrigerator Standard Gas Furnace 40 Gallon Electric Water Heater Plumb/Wire and Vent for Washer and Electric Dryer Interior 100 Amp Service Dining Room Chandelier (N/A All Models) Breakfast Room Chandelier Lights in Baths Above Lavatories Ceiling Fan Ready in Living Room and Master Bedroom 80" Tall Vinyl Dual Pane Windows Without Grids White wood window cornices with 2" blinds Upgrade Floor Linoleum FHA Carpet and Pad Exterior
Exterior Receptacle on the Door Side of House Upgrade Porch Lights Front and Rear Entries 3'-0" Inswing Front Entry Door with Deadbolt 2'-8" Inswing Rear Entry Door with Deadbolt
Exterior Receptacle on the Door Side of House Upgrade Porch Lights Front and Rear Entries
3'-0" Inswing Front Entry Door with Deadbolt 2'-8" Inswing Rear Entry Door with Deadbolt
Exterior Receptacle on the Door Side of House Upgrade Porch Lights Front and Rear Entries 3'-0" Inswing Front Entry Door with Deadbolt 2'-8" Inswing Rear Entry Door with Deadbolt
Exterior Receptacle on the Door Side of House Upgrade Porch Lights Front and Rear Entries
3'-0" Inswing Front Entry Door with Deadbolt 2'-8" Inswing Rear Entry Door with Deadbolt
Images of homes are solely for illustrative purposes and should not be relied upon. Images may not accurately represent the actual condition of a home as constructed, and may contain options which are not standard on all homes.
2 Bed | 2 Bath | 1,587 Sq. Ft. | 26' 8" x 59'
Durango Porch Homes 28602A 2 Bed | 2 Bath | 1,578 Sq. Ft. | 26' 8" x 59'
2 Bed | 2 Bath | 1,608 Sq. Ft. | 26' 8" x 60'
2 Bed | 2 Bath | 1,600 Sq. Ft. | 26' 8" x 60'